Townhouse 4:or

Townhouse med två våningar och egen uteplats
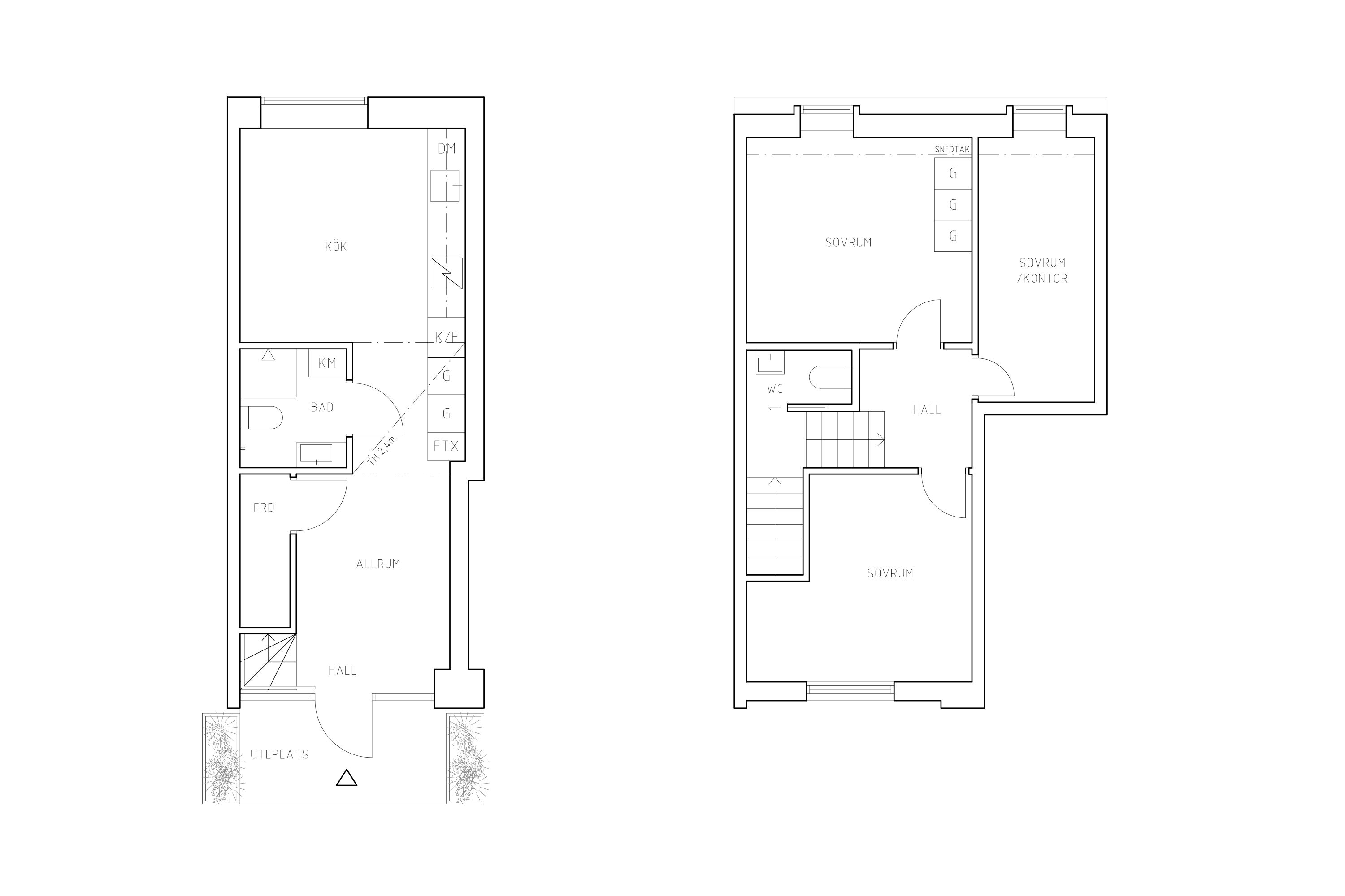
Detta radhus om 2,5 etage passar för allt från en person till en familj som vill leva kvadratsmart, hållbart och mitt i stan. Här finns allrum, kök, badrum, gäst-wc, tre sovrum och egen uteplats. Den kreativa och annorlunda planlösningen, inspirerad av compact living, kombineras med massivt ljus och härlig rumsvolym tack vare entréplanets takhöjd på 3,2 meter.

Lägenheter
Bostad
Lgh. nr.
Rum
Vån
Boarea
Pris
Avgift
No.02
1002 A
4
1
72 m2
6.600.000 kr
3.869 kr
No.03
1003 A
4
1
73 m2
6.650.000 kr
3.917 kr
